ARBORESCENCE

530 route de Bordeaux, 40230 Saint-Vincent de Tyrosse

programme-immobilier-neuf-Saint-vincent-de-tyrosse-arborescence-vignette-coconseils.jpeg

À partir de 197 000 €

du T2 au T3

Balcons, loggias et terrasses

Livraison

4ème trimestre 2024

Eligible

Éligible Pinel
Résidence principale
Résidence secondaire
Investissement locatif

ARBORESCENCE - SAINT-VINCENT DE TYROSSE


PRIX DIRECT PROMOTEUR

LE PROJET

Découvrez ce nouveau lancement au charme authentique et est l’emplacement idéal. En effet, la résidence Arborescence vous offre des appartements, du 2 aux 4 pièces bénéficiant tous d’un espace extérieurs. De plus des jardins arborés et généreux communs viendront compléter le charme du projet. Arborescence a pour ambition d’offrir une nouvelle vie de quartier avec notamenent des voies douces et végétalisées pour limiter l’impact de la voiture et pouvoir garantir une place sécurisée. Le programme bénéficie d’une situation idéale à proximité du centre-ville, des commerces, des écoles, ainsi que de la gare.

Arborescence a sélectionné des matériaux biosourcés et des solutions constructives “bas carbonne” pour réaliser une résidence respectueuse de l’environnement.

De plus, Saint-Vincent de Tyrosse est une commune dynamique et charmante qui offre un cadre de vie exceptionnel à 15 min des emblématiques stations balnéaires landaises comme Hossegor, Seignosse ou encore Capbreton. C’est aussi, 15 min en voiture de l’authentique ville de la Fontaine Chaude, Dax.

Livraison prévue 4 ème trimestre 2024. Éligible Pinel. Idéal pour un investissement locatif ou une résidence principale/secondaire dans les Landes.

Pour tout renseignement complémentaire sur cette résidence située à Saint-Vincent de Tyrosse, n’hésitez pas à contacter l’équipe CO Conseils.

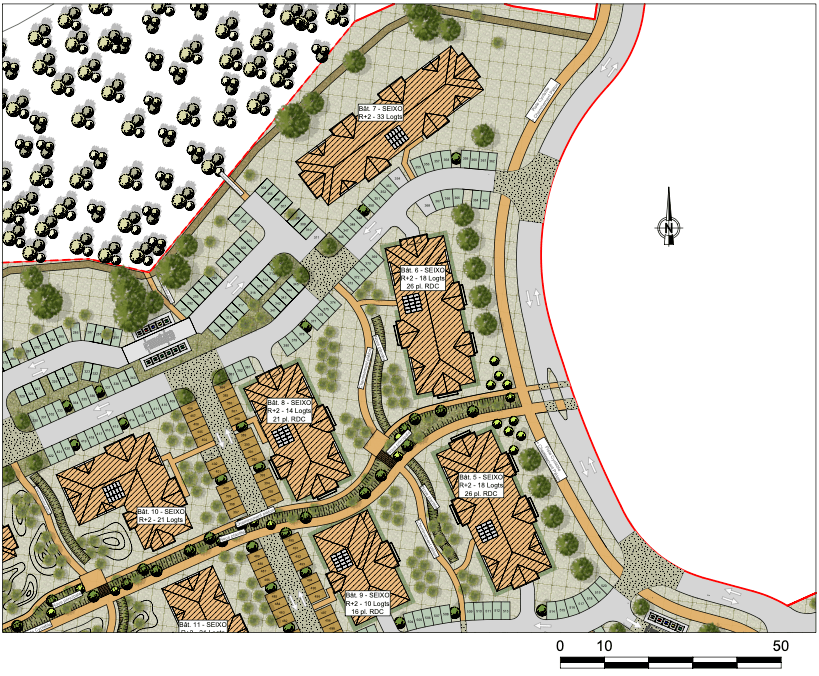
Plan de masse d'ARBORESCENCE

Saint-Vincent de Tyrosse

Plan de masse de la résidence Arborescence à Saint-Vincent-de-Tyrosse

Les prestations

Intérieures

Murs : peinture lisse blanche
Sols : Carrelage 45*45 et revêtement stratifié dans les chambres

Equipements

Production d’eau chaude sanitaire par ballon Thermodynamique individuel
SBE/SDE équipée
Placard aménagés
Double vitrage isolant et volet roulant

Extérieures

Balcons, terrasses et jardins
Parking sécurisé
Local à vélo
Espaces verts arborés communs

Localisation

GRILLE DE LOTS

PRIX DIRECT PROMOTEUR
Dernières opportunités

Typologie Surface (en m2) Balcon / Terrasse / Jardin Parking Prix direct promoteur
T2 À partir de 41,70m2 oui 2 stationnements À partir de 197 000 €
T3 À partir de 66m2 oui 2 stationnements À partir de 235 000€

Contactez-nous pour en savoir plus et obtenir les plans de lots

Documents du projet

Retrouvez l'ensemble des documents du projet et contactez-nous uniquement si vous avez besoin d'informations complémentaires.

Fiche de présentation du projet

Retrouvez les éléments clés du projet sur notre fiche de présentation.

Notice descriptive des travaux

Retrouvez la description des travaux prévus pour ce projet d'appartements neufs.

Programme immobilier neuf Arborescence à Saint-Vincent-de-Tyrosse

Prenez rendez-vous en ligne avec l'un de nos conseillers

Quoi de mieux que de choisir l'horaire auquel vous voulez échanger directement avec l'un de nos conseillers ? Choisissez votre horaire dans le calendrier ci-dessous.

Prendre rendez-vous en ligne

Demande de contact

Vous souhaitez obtenir des informations, complétez le formulaire en précisant votre demande et le(s) lot(s) concerné(s) ou contactez nous au 05 35 54 22 54

05 35 54 22 54 Nous contacter